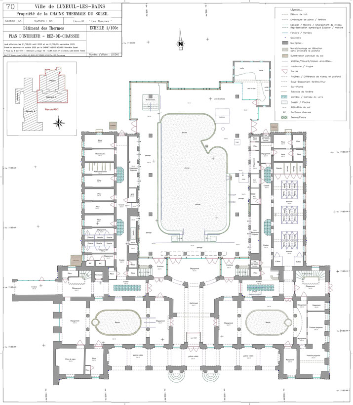
Elaboration d’un nuage de points 3D qui va représenter fidèlement l’environnement scanné en trois dimensions.

Nous pouvons réaliser des relevés de bâtiments (ou autres) au moyen d’un scanner laser 3D permettant de générer un nuage de points en trois dimensions. A partir de ce nuage de points nous pouvons établir, avec une précision inégalée, des plans de façade, des coupes, des plans d’intérieurs vous permettant de réaliser tous vos projets dans le moindre détail.

Nous pouvons également vous fournir avec cette technologie, une visionneuse vous permettant de vous projeter dans la réalité grâce à des animations 3D (scène 2go ©Faro) et de prendre des mesures.




